レジデンスタワー上本町 3204号室 [No.764] NEWおすすめ

| 物件名 | レジデンスタワー上本町 3204号室 |
|---|---|
| 所在地 | 大阪府大阪市天王寺区細工谷1-3-25 |
| 価 格 | 12,990万円 |
| 交通/最寄駅 | 近鉄大阪線・奈良線『大阪上本町』駅徒歩7分/ 大阪メトロ谷町線・千日前線『谷町九丁目』駅徒歩11分/ JR大阪環状線『鶴橋』駅徒歩11分 |
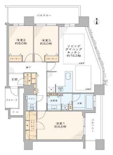
| 建物床面積 | 89.29 ㎡ |
| 間取り | 3LDK+WIC・SIC |
| 築年月 | 2009(平成21)年1月 |
| 構 造 | 鉄筋コンクリート造地上35階建32階部分 |
| その他 | 空有(20,000~34,000円/月)、都市ガス・公営水道・本下水・EV・オートロック・宅配ボックス |
| 管理費 | 18,930円 |
| 修繕積立金 | 16,070円 |
| 詳細情報 | ◇地上35階建て大規模タワーレジデンス ◇令和4年共用部大規模修繕工事実施済み ◇35階建32階部分・北東角部屋 眺望良好 ◇ペット飼育可(規約細則あり、犬・猫合計2匹まで) |
| こだわりアイコン |
